买房之后,怎么装?如何改?空间合理不?有浪费没有?局部空间小怎么办?装什么风格?装修流程一窍不通?啊啊啊啊啊!一想起装修,就想要抓狂!香江华府三期的业主朋友您们有福啦!为了更好的解决您们的问题,田园装饰组建了一艘香江华府豪华航母吶!在您们还在外围思考观看的时候,我们的设计队伍就已经深入施工工地测量了实际的尺寸和拍摄了实景照片,多次讨论修"/>
预约申请即可获得精美礼品一份!

买房之后,怎么装?如何改?空间合理不?有浪费没有?局部空间小怎么办?装什么风格?装修流程一窍不通?啊啊啊啊啊!一想起装修,就想要抓狂!
香江华府三期的业主朋友您们有福啦!为了更好的解决您们的问题,田园装饰组建了一艘香江华府豪华航母吶!

在您们还在外围思考观看的时候,我们的设计队伍就已经深入施工工地测量了实际的尺寸和拍摄了实景照片,多次讨论修改方案,把香江华府三期的所有户型都做了详细的解析!只为让您能更从容的踏上装修之旅。
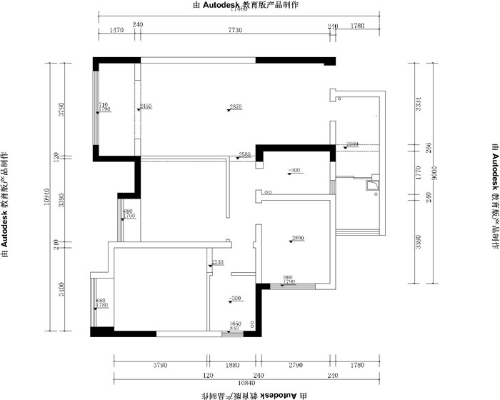
香江华府三期
【装修面积】 116平米
【装修风格】 新中式风格
原始结构

户型优缺点
优点:
1、空间格局规整,紧凑,空间无浪费。
2、每个房间采光都很好,空气流通。
缺点:
1、没有进户过道,入户就是餐厅区域,鞋柜位置和餐厅位置需多加考虑。
2、厨房空间不大,较为拥挤。
设计方案

设计理念
结合了现代风格的简约和中式风格的优雅,新中式风格越来越受到当代人的青睐。于有限的空间中,创造出磅礴的意境。
草图展示

▼厨房空间较小,将厨房门洞进行调整,与阳台连通,冰箱放在阳台,不但使用更方便,橱柜由一字形变L形,厨房瞬间变得大气。原门洞位置也解决了鞋柜的问题,空间利用率达到最高。
▼本案进门即看穿全景,设计上为了规避这一点,采用了中式的隔断,不但是一处精致的玄关,还使整体的空间层次更加丰富,有格调又不显压抑,呈现出清雅宁静之美!

▼中式讲究的是自然情趣,养花逗鸟、抚琴品茶。因此阳台上我们做成榻榻米,功能性与舒适性兼备。

香江华府三期
【装修面积】 140平米
【装修风格】 欧式风格
原始结构

户型优缺点
优点:
1、南北通透,阳光充足,空气流畅。
2、该户型正临旌湖、四方两厅设计,方正实用。
缺点:
1、厨房空间较小,冰箱位置要好好考虑。
2、可变空间改卧室的话,衣柜位置不足,需要改造部分墙体。
设计方案
设计理念
依水而居,临水而栖。客餐厅巨大的落地玻璃窗将四季美景尽收眼底。
小小的改造之后的空间更开阔更通透明亮,生活更放松舒适。
草图展示
▼入户独立玄关,稳重大气。将厨房与生活阳台连通之后,功能性更完善。

▼将生活阳台扩展出去与客餐厅相连通,使整个空间更通透大气。景观更宜人。客餐厅的互动感增强。

▼结构改造不大的情况下,各个空间都相对充裕,合理搭配,舒适性更高。

各位业主朋友看了以后有自己喜欢的风格,或者有同户型的都可以联系小编,每个户型都有不同的方案效果,想打造您的私人订制方案,来田园,准没错!
陈秋伶作品案例欣赏

刘鑫作品案例欣赏

李小梅作品案例欣赏

陈辛慧作品案例欣赏

亲爱的香江华府三期的业主朋友们,来吧,现有的户型我们都有做分析,来看看您家可以怎么装吧!田园装饰也和很多香江华府一二期的业主朋友有过合作(也特别感谢大家对我们的信任),欢迎您来考察咨询噢!
基础装修工程: ? 元
健康定制家具: ? 元
功能主材搭配: ? 元